Chalet C

Chamonix-Mont-Blanc (74)

2025-2026

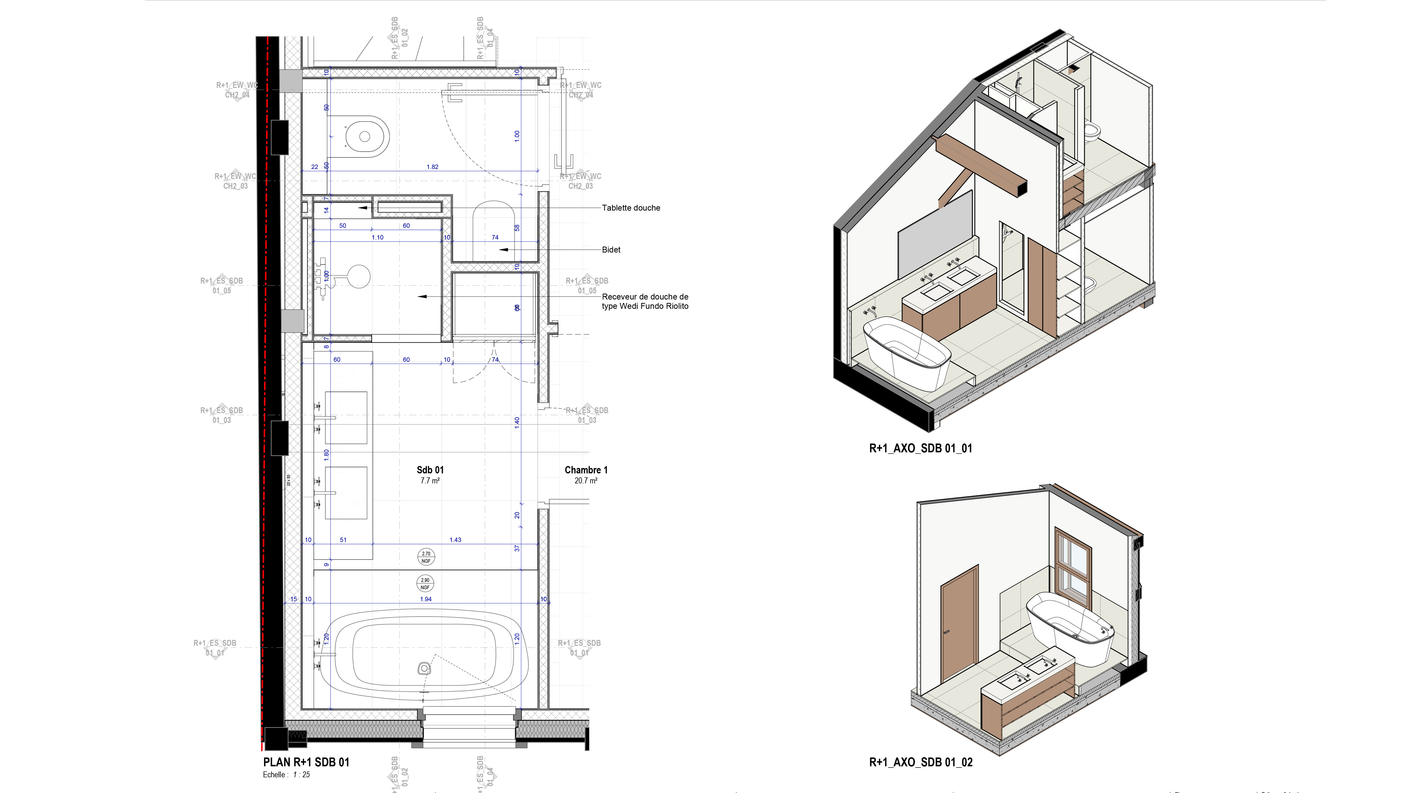
Cette ancienne ferme à Chamonix a été restructurée de façon à transformer le bâtiment en un chalet de standing, dont les nouveaux espaces s’ouvrent généreusement sur le grand paysage grâce à des orientations choisies avec soin. Le traitement des façades et l’intégration des nouvelles ouvertures respectent l’architecture traditionnelle locale, établissant un dialogue harmonieux avec le contexte urbain et paysager.

Programme

Réhabilitation d’un chalet à Chamonix

Lieu

Chamonix-Mont-Blanc (74)

Date

2025-2026

Client

Particulier

Surface

260 m²

Montant des travaux

1 M€

Maitrise d'oeuvre

NOVIA Architecture & NOVIA Ingénierie

Missions

Architecture + Ingénierie + Economie + MOEX

Certifications

Certifications

Projets liés